La grande métamorphose commence!
Publié le 17 octobre 2020 dans L'Illusion prend racine
Ça y est, nous débuterons bientôt les travaux majeurs de construction qui transformeront le bâtiment actuel de L’Illusion en un véritable carrefour théâtral… Imaginez notre fébrilité de voir prendre forme ce rêve partagé d’un théâtre de marionnettes à la hauteur de notre art, des artistes et de notre public! L’inauguration du nouvel espace, digne du quadrilatère formé par les rues Saint-Denis et Beaubien, est prévue à l’automne 2021.
L’Illusion, Espace de création et de diffusion dédié aux arts de la marionnette et à l’enfant constituera un pôle rassembleur pour les enfants, les adultes et toutes les personnes passionnées des arts de la marionnette. Ce projet, ancré dans son quartier, pérennise un espace culturel unique et contribue au rayonnement de la culture montréalaise sur la scène locale, nationale et internationale.
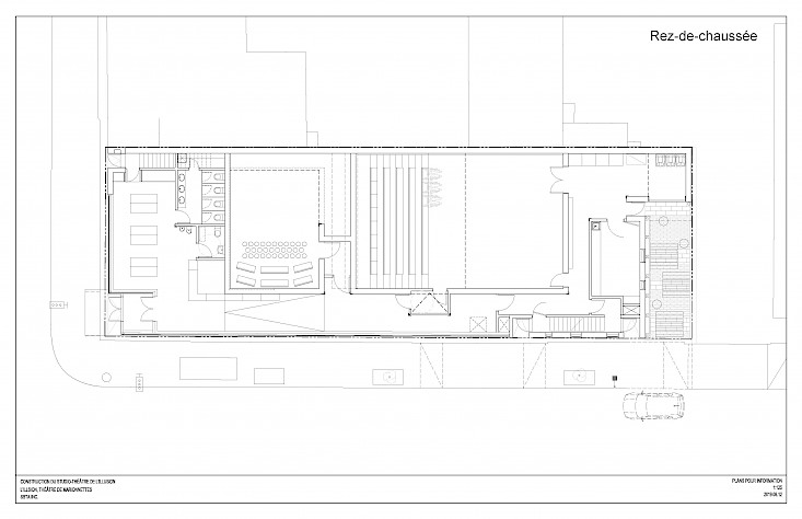
Doté d’une superficie de 767m2, le nouvel espace de L’Illusion préservera son charme intimiste tout en regroupant sous son toit :
- une salle de spectacle de 120 places adaptée au public jeunesse;
- une salle multifonctionnelle permettant la création et la tenue d’activités de médiation culturelle;
- une loge et un salon vert pour les artistes;
- un foyer plus spacieux pour le public;
- des espaces de travail pour l'administration et les artistes en résidence.
De précieux partenaires
Le 9 septembre dernier fut un jour mémorable dans la concrétisation du projet. Nous étions rassemblés sous un chapiteau installé dans notre stationnement quand l’honorable Steven Guilbeault, ministre du Patrimoine canadien, a annoncé l’octroi d’une subvention de 3,44M$ au projet.
Ainsi, la participation financière de Patrimoine canadien boucle le budget total du projet (8,1M$) complété par de précieux partenaires financiers :
• Ministère de la Culture et des Communications
• Patrimoine canadien
• Ministère des Affaires municipales et de l'Habitation
• Arrondissement Rosemont—La Petite-Patrie
• PME-MTL Centre Est
• Caisse d’économie Solidaire
• Investissement Québec
• Fiducie du Chantier de l'économie sociale
• Réseau d’Investissement social du Québec.


Prochaine étape : Démolition du bâtiment existant
La première étape de la construction, et sans doute la plus symbolique, est la démolition du bâtiment existant! Il faut rappeler que le bâtiment actuel a été construit en 1988 pour la chaîne de restauration rapide Dunkin’ donuts et a ensuite été occupé par un Dépanneur Couche-Tard. Les professionnel.le.s du projet ont rapidement conclu que de tenter de rafistoler le bâtiment existant aurait été complexe, coûteux et risqué.
Donc, pour se préparer à la démolition, notre équipe technique a vidé l’ensemble de la bâtisse en récupérant le plus d’éléments possible : les bureaux, le plancher de la salle, les éclairages, les rideaux de scène, etc. L’espace, vidé de nos petites touches de couleurs et de nos fantaisies, nous rappelle vite le passé peu glorieux de l’édifice et nous confirme la nécessité et l’urgence des travaux!
Nous sommes présentement en discussion avec l’Arrondissement Rosemont – La Petite-Patrie en vue d’obtenir le permis d’occupation du domaine public qui ne nuirait pas au nouvel aménagement du Réseau express vélo (REV) sur St-Denis.
Tout semble maintenant bien aligné pour un démarrage imminent des travaux.
3, 2, 1 C'EST PARTI!
